Erhvervsejendom 600kvm

Til leje

Lupinvej 17, 9500 Hobro

  • Erhvervsejendom
  • Etageareal: 600 m2
  • 600 m² anvendelige erhvervslokaler

Leje pr. måned 16.000 kr.

Ejendommens detaljer

  • Ejendomstype : Erhvervsejendom
  • Ejendomsstatus : Til leje
  • Sagsnr. : 31003
  • Årsleje : 192.000 kr.
  • Leje pr. md. : 16.000 kr.
  • Årsleje pr. m2 : 320 kr.
  • Drift pr. m2 : Inkluderet i leje
  • Drift pr. md. : Inkluderet i leje
  • Forbrug pr. md. : Ikke angivet

Beskrivelse

Butik-, showroom- eller lagerlejemål med stor udenomsplads – Lupinvej 17, Hobro

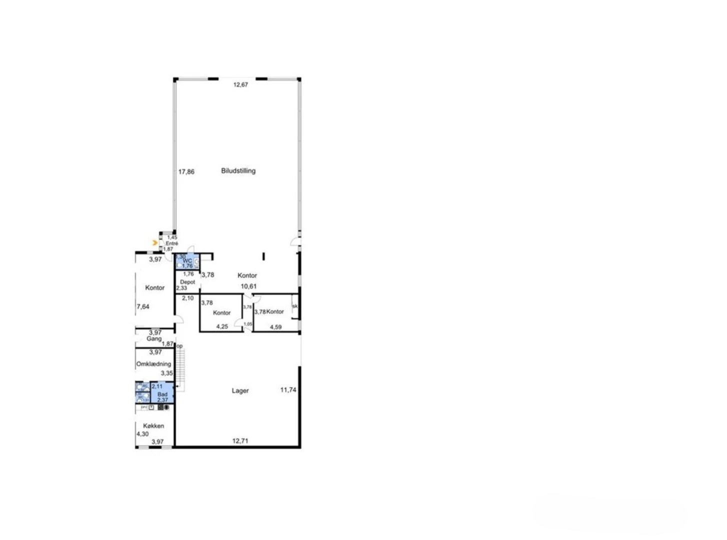
Lupinvej 17 i Hobro udbydes dette fleksible erhvervslejemål på 600 m², tidligere anvendt som bilforretning og med meget stor udenomsplads. Lejemålet egner sig ideelt til showroom, bilhandel, lager eller engrosvirksomhed, hvor både plads, synlighed og tilgængelighed er afgørende.

Lokalerne er lyse og regulære med gode muligheder for fleksibel indretning, og den store udenomsplads giver optimale forhold for parkering, opstilling og varehåndtering. Ejendommen er beliggende i et veletableret erhvervsområde i Hobro med nem adgang for både kunder, medarbejdere og leverandører.

Nøglepunkter:
✅ 600 m² regulære og anvendelige erhvervslokaler
✅ Meget stor udenomsplads med gode parkerings- og manøvrearealer
✅ Velegnet til showroom, bilhandel, lager eller engros
✅ Fleksibel indretning
✅ Køkken, toilet samt bad- og omklædningsfaciliteter
✅ Fibernet og gode tekniske installationer
✅ Attraktiv leje på 320 kr. pr. m² årligt

Den årlige leje udgør 192.000 kr. inkl. drift, svarende til ca. 16.000 kr. pr. måned. Forbrug til el, vand og varme afregnes a conto.